En ventaMacroproyecto - Encanto del Valle
Cali y sus alrededores / Sur
















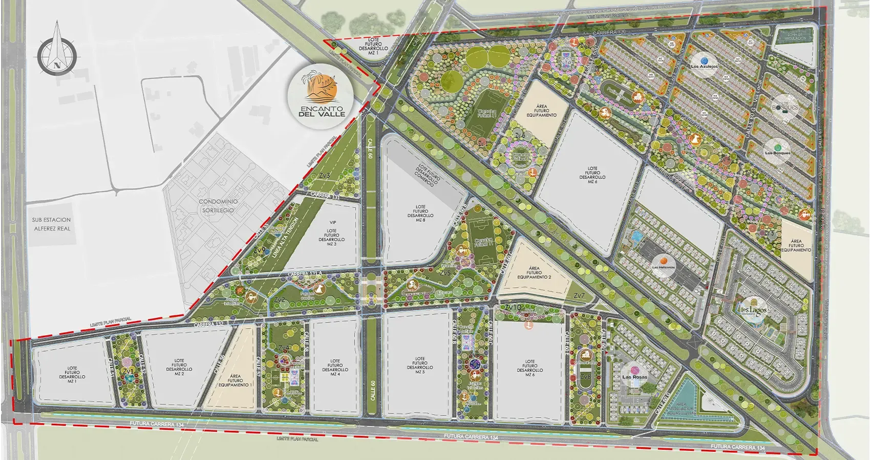
Encanto del Valle es un nuevo desarrollo urbanístico ubicado al sur de la ciudad de Cali. Un lugar nuevo y exclusivo para ti. Hicimos posible vivir rodeado de naturaleza y muy cerca de todo lo que te interesa. Descubre todas las ventajas de nuestro nuevo proyecto de casas y apartamentos con más zonas para el esparcimiento y la recreación en familia.
Proyectos en Macroproyecto - Encanto del Valle
${item.field_estados}
${ item.field_area_card }
${ item.field_alcobas_card }
${ item.field_banos_card }
Sala comedor
${ item.title }
${ item.field_ciudad } – ${ item.field_departamento }
${ currencySymbols[currency]}${ convertCurrency(item.field_precio) | formatPrice } ${ currency } Precio desde
${item.field_descripcion_card}
${item.field_precio_en_smmlv }
${ messageSMMLV }
✕